Lan can
TỔNG QUAN SẢN PHẨM
Công ty TNHH Đầu tư và Sản xuất Vĩnh Hưng (Vĩnh Hưng IP) chuyên sản xuất các loại lan can an toàn cho các công trình giao thông, dân dụng và công nghiệp. Sản phẩm lan can cầu được sản xuất theo thiết kế điển hình của công ty hoặc theo bản vẽ của khách hàng cung cấp.
Sản phẩm lan can cầu của chúng tôi phù hợp các tiêu chuẩn: BS EN 1317, TCVN 11823-13:2017. Tất cả các chi tiết của lan can cầu đều được gia công trên dây chuyền máy móc hiện đại, độ chính xác cao, nhằm tạo thuận lợi trong công tác lắp đặt cũng như độ bền của sản phẩm.
Chất lượng sản phẩm lan can cầu của Vĩnh Hưng được khẳng định khi vươn ra tầm khu vực với những đơn hàng xuất khẩu cho các dự án tại Brunei, Philippines,…


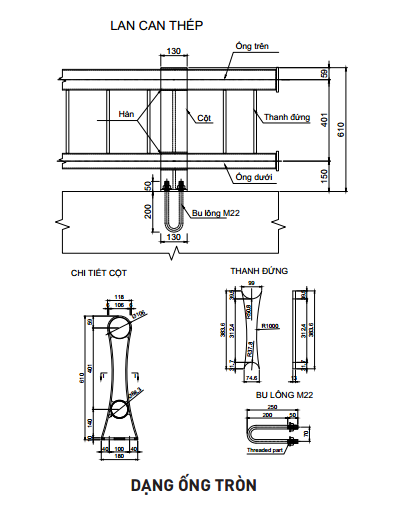
CẤU TẠO
Lan can cầu bao gồm hệ cột, tay vịn và thanh chống giữa với nhiều chủng loại, kích thước và kiểu dáng khác nhau. Tính thẩm mỹ được yêu cầu rất cao khi thiết kế lan can cầu nhất là các cầu trong khu vực thành phố hay các tuyến đường quan trọng.
Các phương pháp bảo vệ chống ăn mòn được sử dụng cho sản phẩm lan can: mạ kẽm nhúng nóng theo ASTM A123, sơn Epoxy, sơn Epoxy trên nền mạ kẽm.

